Young Residence.

New Cabin construction.

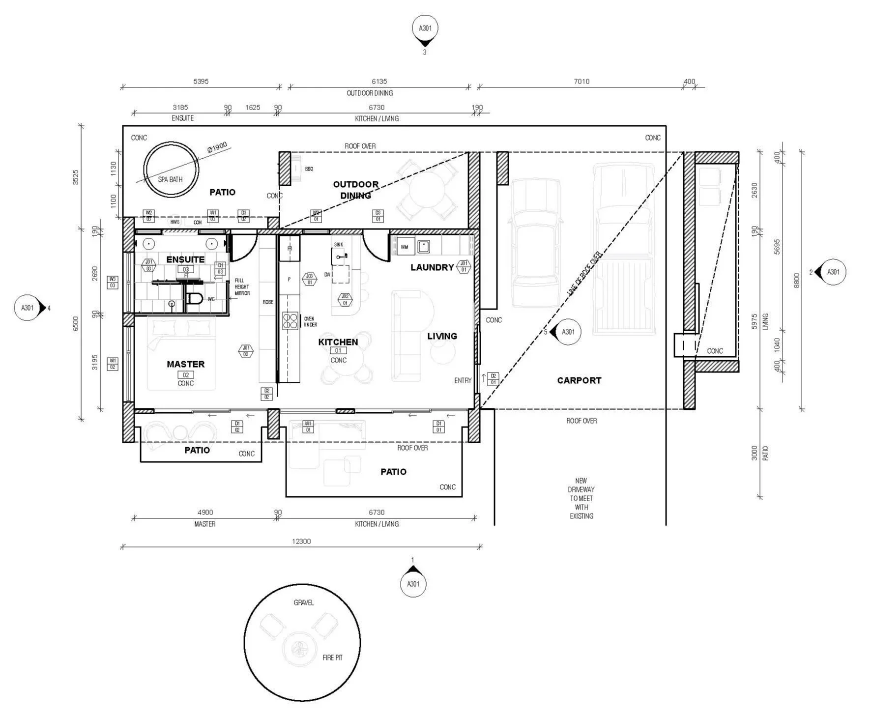
The Cabin.

Interior design and drafting for the construction of a new 1 bedroom cabin including:

  • Preliminary Architectural Drawings set

  • Custom Joinery Design and Details

  • Materials and Finishes selection and scheduling

  • Fittings, Fixtures & Equipment selection and scheduling

  • Remote Project Delivery

Location.
Currumbin Valley, QLD

Status.
Current

Year.
2025

Builder.
Allen Pro Building

Engineer.
GSD Engineers

Next
Next

Gordon Library